Blog

常见隔膜阀结构示意图大全

常见隔膜阀结构示意图大全

  隔膜阀结构示意图按阀门驱动方式分为手动、气动、电动三大类,分别如下所示。

  手动隔膜阀

  常见隔膜阀结构示意图大全

  G41F型手动隔膜阀(堰式)

  常见隔膜阀结构示意图大全

  G45F型手动隔膜阀(直流式)

  气动隔膜阀

  常见隔膜阀结构示意图大全

  G641F型气动隔膜阀(往复式)

  常见隔膜阀结构示意图大全

  G641F型气动隔膜阀(常闭式)

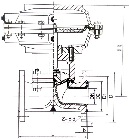
  常见隔膜阀结构示意图大全

  EG541F型气动隔膜阀(堰式)

  电动隔膜阀

  常见隔膜阀结构示意图大全

  G941F型电动隔膜阀(堰式)

  更多隔膜阀相关资料,可点击如下链接查看。

  http://www.valvekoko.com/famenjishu/chenfugemofa.html(g41f46衬氟隔膜阀)

  http://www.valvekoko.com/famenjishu/diaphragm-valve.html(隔膜阀原理、型号、尺寸、厂家)